
ApartmentUnitForRent
$1,120 / Month
32402 Bainbridge Rd, Solon, OH 44139
$1,120
Description
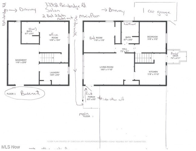
Available now for occupancy. Solon CSD. 2 bedroom ranch unit in a side-by-side duplex. New laminate through all but bathroom,which has ceramic tile flooring and features a tub/shower. The kitchen is equipped with stove,built-in microwave,dishwasher,and fridge. Washer and dryer is in the basement laundry room. Also in the basement is a bonus room with painted concrete floor and painted block walls with access to the second bathroom. Due to egress,NO sleeping quarters allowed in the bonus room. A covered porch providing a dry place for the postal person to deliver directly to your box by your door. An attached 1-car garage for use that is attached to the building,but not directly accessible to the unit. The home is close to all the city amenities of Solon,including,but no limited to stores,restaurants,banking,and more. Easy access to US Route 422. Trash and recycling included. Tenant responsible for electric,gas,mowing,plowing,and water/sewer. Owner is looking for good credit,a clean background and at least 2.5 the rent as income,but prefers 3xs the monthly payment as income. Look at the little film reel for a virtual tour. 32402 Bainbridge Rd is an apartment community located in Cuyahoga County and the 44139 ZIP Code.
Neighborhood
32402 Bainbridge Rd is an apartment community located in Cuyahoga County and the 44139 ZIP Code.
Floor Plan
2 Bed
2 Bath
Sq Ft
$1,120 / month
One-Time Fees
| Application Fee | $60 |
Contact Property
Leasing Office
+1 (863) 434-3932